Architectural Design Consultants
T:
01676 540954 |
E:
Home
About Us
HMO Projects
Portfolio
Contact Us
Portfolio
WE DEAL WITH ALL THE ARCHITECTURAL PROCESSES TO MINIMISE THE STRESS OF ALL PROJECTS WE UNDERTAKE
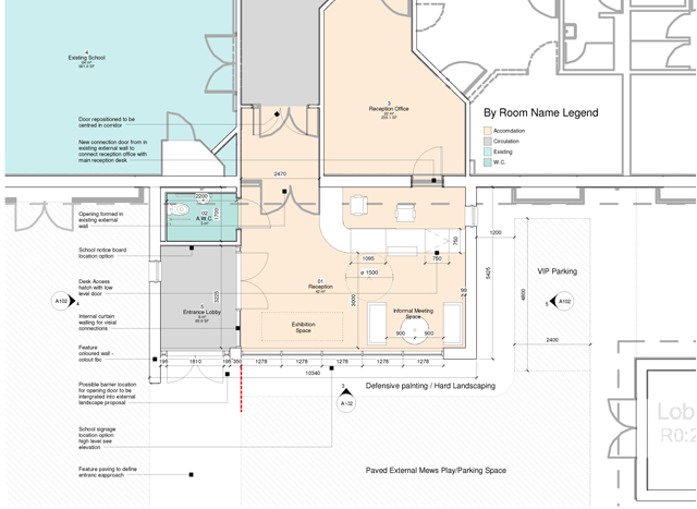
Stanton Bridge Primary School
SECTORS
Residential
Public Sector / Education
Commercial / Workplace
Warehouse / Distribution / Chilled Distribution